Топка ТЧЗМ-2-2,7/8,0 в Алматы

Топка ТЧЗМ-2-2,7/8,0 изготавливается из жаропрочных стальных сплавов. Такие изделия необходимы для обогрева промышленных объектов, складских и подобных помещений. Топки работают вместе с твердотопливными котлами и являются важной частью отопительной системы. Они обеспечивают нагрев теплоносителя, который подается котлом в общую систему обогрева объекта.

Цена:
Цена не указана
Количество:
Отправляя свои личные данные через формы на сайте, Вы даёте своё согласие на обработку персональных данных согласно Федеральному закону №152-ФЗ «О персональных данных» от 27.07.2006 г. в редакции от 01.07.2017.

Устройство и принцип работы

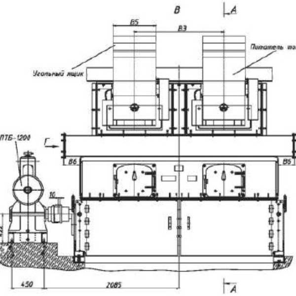
Конструкция ТЧЗМ-2-2,7/8,0 включает раму, состоящую из двух щек. Они соединены между собой расположенными поперечно балками. Подача топлива осуществляется за счет полотна колосникового типа, а также двух валов. Кроме того, подача топлива осуществляется за счет работы забрасывателя и предпотолка.

Принцип работы все моделей данного типа заключается в непрерывной подаче топливного материала.

Особенности и преимущества

Представленные модели топок ТЧЗМ-2-2,7/8,0 имеют простую конструкцию, которая крайне редко ломается. Кроме того, изделия отличаются энергоэффективностью и не требуют использования больших объемов топлива. Однако основные особенности и преимущества продукции следует описать подробнее:

  • В качестве топливного материала применяется каменный и бурый уголь. При этом размеры фрагментов угля не должны превышать 5 см. Есть условия по включениям мелочи. В общей массе подаваемого угля, такой мелочи должно быть не более 60%;
  • Эффективность отлично демонстрируется потерей тепла от механического недожога. Так, данный показатель не превышает 10%;
  • Модели ТЧЗМ-2-2,7/8,0 можно настраивать на определенный режим работы, в зависимости от нужной температуры. К примеру, изделия способны работать на 25% от предельной мощности. При этом они отлично переносят интенсивную эксплуатацию и способны годами работать на 100% предельной мощности;
  • Подача топливного материала осуществляется механическим и пневматическом способом. В последнем случае это позволяет избавиться от пыли, поскольку при подаче она развеивается.

Таким образом, данные изделия ТЧЗМ-2-2,7/8,0 могут работать на любом промышленном объекте. Они прослужат 10 и более лет, не потребовав ремонта или замены. При необходимости всегда можно выполнить ремонт топки за счет деталей, представленный в каталоге сайта.

Размещение и установка

В длину данные модели ТЧЗМ-2-2,7/8,0 имеют 2 и более метра. Они требуют пространства порядка 15 м² для размещения. Поэтому, для них нужно предусматривать отдельную зону вблизи отопительного котла.

Сбор топки осуществляется на месте. Для этого рекомендуется заказывать услуги мастеров компании. Они выполнят монтажные работы, а также тестовые запуски и проверят работоспособность изделия в различных режимах работы.

Эксплуатация и техническое обслуживание

Конструкция изделия ТЧЗМ-2-2,7/8,0 очень прочна и отличается простотой. Поэтому, они не требуют постоянного контроля за своей работой. Техническое обслуживание рекомендуется проводить один раз в 6 месяцев или раз в год.

В ходе эксплуатации топка может работать на максимальных значениях мощности без риска поломки. Кроме того, ее конструкция исключает возгорания.

Купить топку ТЧЗМ-2-2,7/8,0

Купить любую модель данных топок ТЧЗМ-2-2,7/8,0 можно по каталогу компании. Для этого достаточно запросить обратный звонок или позвонить по многоканальному номеру телефона.

Характеристики
Серия: ТЧЗМ
Вид топлива: Бурый угольКаменный угольАнтрацит
Диапазон изменения нагрузки: 25-100 %
Коэффициент избытка воздуха за топкой, не более: 1,35-1,5
Потери тепла от химического недожега, не более: 0,5 %
Потери тепла от механического недожега: 7 %
Влажность топлива, не более: 40 %
Зольность топлива, не более: 35 %
Содержание мелочи (0-6 мм), не более: 60 %
Максимальный размер куска: 40 мм
Ширина колосниковой решетки: 2700 мм
Длина колосниковой решетки: 8000 мм
Активная площадь колосниковой решетки: 19,9 м²
Ширина забрасывателя: 600 мм
Габаритные размеры: 9620х3160х4360 мм
Масса: 33400 кг
Вид топки: Механическая
Схемы
Комплект поставки

Города поставок

Москва
Пн-Пт 09:00 - 18:00
Сб 09:00 - 17:00
Карачаево-Черкесская Республика
Пн-Пт 09:00 - 18:00
Сб 09:00 - 17:00
Екатеринбург
Пн-Пт 09:00 - 18:00
Сб 09:00 - 17:00

Совершите покупку за 4 шага

Шаг 1
Выберите товары из каталога
Шаг 2
Поместите нужные вам товары в корзины
Шаг 3
Укажите свои контактные данные в форме обратной связи
Шаг 5
Ожидайте звонка от менеджера для оформления покупки

Похожие товары

Топки ТШПМ
Топки ТШПМ
Цена от 0 руб.
Топки ТЧЗМ
Топки ТЧЗМ
Цена от 0 руб.
Топки ТЛПХ
Топки ТЛПХ
Цена от 0 руб.
Вы смотрели эти товары
Топки котлов
Топка ТЧЗМ-2-2,7/8,0 изготавливается из жаропрочных стальных сплавов. Такие изделия необходимы для обогрева промышленных объектов, складских и подобных помещений. Топки работают вместе с твердотопливными котлами и являются важной частью отопительной системы. Они обеспечивают нагрев теплоносителя, который подается котлом в общую систему обогрева объекта.
Промышленные насосы
Консольный насос типа К 200-150-250 успешно применяется для перекачивания чистой воды, и жидкостей, которые по своей плотности — аналогичны значению воды. Насосы такого класса достаточно популярны и пользуются большим спросом, поэтому они выпускаются различными производителями. Устройства используются в промышленных и бытовых масштабах, в гидравлических системах, благодаря своему удобству и простоте эксплуатации.
Промышленные насосы
Консольный насос типа К 150-125-315 успешно применяется для перекачивания чистой воды, и жидкостей, которые по своей плотности — аналогичны значению воды. Насосы такого класса достаточно популярны и пользуются большим спросом, поэтому они выпускаются различными производителями. Устройства используются в промышленных и бытовых масштабах, в гидравлических системах, благодаря своему удобству и простоте эксплуатации.